月の支払いも家賃なみでスマート生活
月の支払いも家賃なみでスマート生活
旭川市末広1条10丁目
2,480万円(税込)
【 末広 】 シンプルデザインの2階建4LDK 月々60,964円~
■ツルハドラックストアまで徒歩2分
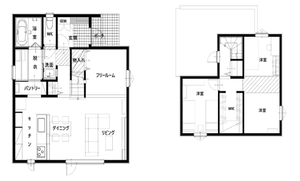
■リビング続きのフリールームあり開放感のある間取り、ファミリークロークあり
■都市ガスで省エネ、高性能2×6工法の家
玄関ホール

洗面は脱衣所と分けた人気の独立タイプ


物件概要
- 種別/番号
- 既存(未入居)住宅/ 100360821
- 価 格
- 2,480万円 (消費税込)
- 媒介報酬
- 売主につき 無料
- 物件住所
- 旭川市末広1条10丁目
- GoogleMap
- 土地面積
- 247.92㎡ (74.99坪)
- 建物面積
- 96.73㎡ (約29坪)
- 建蔽容積率
- 40% - 60%
- 建築年月
- 2022年12月(築後 2年)
- 地目/ 用途
- 宅地 / 第1種低層住居専用地域
- 間取/ 戸数
- 4部屋4LDK
- 確認申請
- あ22-802
- 構 造
- ツーバイシックス(壁式枠組工法)
- 地積状況
- 北西向き 間口 10.9m
前面道路幅 11.00m
- 学 校
- 凌雲小学校 / 広陵中学校
- 土地環境
- 上下水道、都市ガス
- 交通機関
- 道北バス末広 末広1条10丁目バス停徒歩3分
- 元 付/取引態様
- (株)家計画 売主
- 最終更新日
- 2025-09-16
- 引渡可能日
- 契約後即引渡可能
- 備 考
- 凌雲小学校区、広陵中学校区でさらにツルハドラックストア徒歩圏内の希少物件です。
2022年12月完成のお家です。
ご見学希望の場合は、0800-800-0688(フリーダイヤル)までご連絡ください。
凌雲小学校

広陵中学校

ツルハドラックストア旭川末広北
